Consulta el catálogo de recambios

WH000426 - BOMBA DE CALOR PM40 MD8

Revisión nº: 2 | Fecha: 15-09-2023

BOMBA DE CALOR PM40 MD8

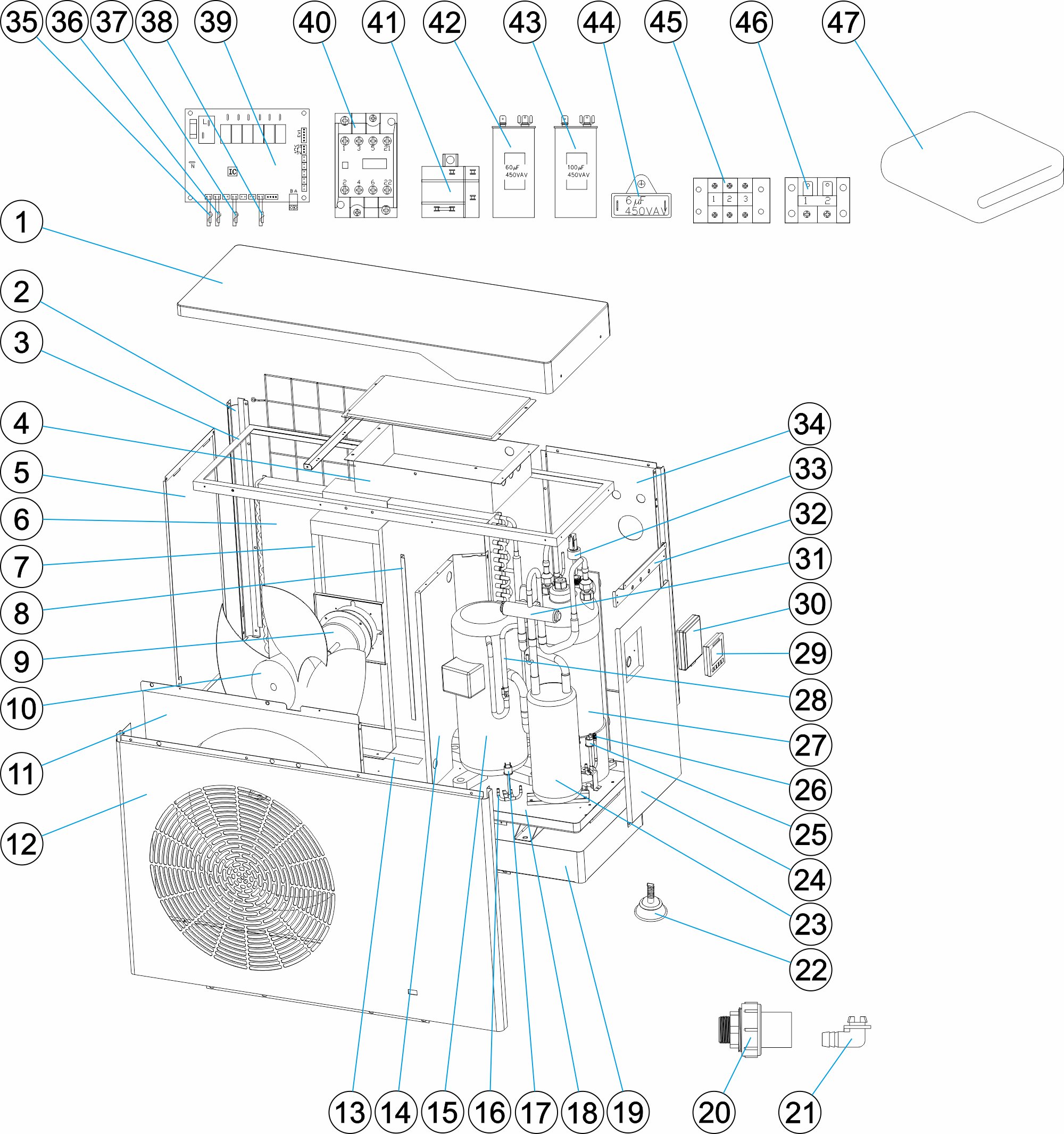
Piezas del despiece (kits o unitarios)

POS. CÓDIGO DESCRIPCIÓN    
1 66069R0334 TAPA SUPERIOR
2 66069R0348 SOPORTE PARA PANEL IZQUIERDO
3 66069R0335 TAPA SUPERIOR
4 66069R0336 CAJA ELECTRICA
5 66069R0337 PANEL IZQUIERDO
6 66074R0004 EVAPORADOR
7 66069R0338 SOPORTE PARA VENTILADOR MOTOR
8 66069R0351 SOPORTE PANEL FRONTAL
9 66074R0008 MOTOR VENTILADOR
10 66074R0009 ASPAS VENTILADOR
11 66069R0341 REJILLA VENTILADOR
12 66069R0340 PANEL FRONTAL
13 66069R0039 RESISTENCIA DESHIELO
14 66069R0339 PANEL PARTICIÓN
15 66082R0012 COMPRESOR
16 66069R0015 TUBERÍAS PARA PRESOSTATO
17 66069R0031 INTERRUPTOR ALTA PRESIÓN
18 66069R0343 SOPORTE PANEL FRONTAL
19 66069R0349 TAPA FONDO
20 66069R0041 CONECTOR DE AGUA
21 66069R0042 PURGA AGUA CONDENSACIÓN
22 66069R0102 PIES ANTIVIBRATORIOS
23 66073R0043 SEPARADOR GAS-LÍQUIDO
24 66069R0344 PANEL DERECHO
25 66069R0032 INTERRUPTOR BAJA PRESIÓN
26 66069R0022 VÁLVULA PARA VACIADO/RELLENO
27 66074R0041 INTERCAMBIADOR DE TITANIO
28 66069R0345 TUBERÍAS PARA INTERCAMBIADOR
29 66069R3304 CONTROLADOR LCD (PM40)
DESCATALOGADO
30 66069R0262 CAJA CONTROLADOR IMPERMEABLE
31 66073R0013 VÁLVULA DE 4 VÍAS
32 66069R0350 CONEXIÓN PLACA TAPA SUPERIOR
33 66069R0030 FLUJOSTATO
34 66069R0346 PANEL TRASERO
35 66069R0054 SENSOR TEMPERATURA L=1200
36 66069R0055 SENSOR TEMP (L=1200 COBRE C-NEGRO)
37 66069R0057 SENSOR TEMPERATURA L=800
38 66069R0347 SENSOR TEMPERATURA L=2000
39 66069R0060 PLACA BASE PCB
40 66082R0027 RELÉ PARA COMPRESOR
41 66069R0328 RELÉ
42 66071R0032 CONDENSADOR COMPRESOR
43 66069R0329 CONDENSADOR ARRAQUE
44 66073R0025 CONDENSADOR VENTILADOR (6UF)
45 66073R0036 TERMINAL DE POTENCIA
46 66069R0053 TERMINAL PARA BOMBA
47 ACXXPR1005 FUNDA HIVERNAL EV25/AC25/ST20-25/MD-TD8

Últimas Novedades:

VER MÁS NOVEDADES

¿Necesitas ayuda?

¿Estás buscando ayuda para encontrar el recambio que necesitas? No dudes en ponerte en contacto con tu Proveedor Oficial de FLUIDRA. Estaremos encantados de asistirte en tu búsqueda

Utilizamos cookies, propias y de terceros, para asegurar el correcto funcionamiento del sitio web y para analizar nuestros servicios y mejorar su experiencia en nuestro sitio web. Puede aceptar las cookies haciendo clic en "Aceptar" o rechazarlas haciendo clic Rechazar. Si desea saber más sobre el uso de las cookies, consulte nuestra Política de Cookies.
Aceptar Rechazar